BYT 2+KK S BALKÓNEM
REZIDENCE PODHORSKÁ
CENA 5.650.000 Kč
POPIS NEMOVITOSTI
Exkluzivně Vám nabízíme byt o dispozici 2+kk s balkónem a celkové výměře 61,5 m2, který se nachází ve 3. nadzemním podlaží rezidenčního projektu Rezidence Podhorská blízko centra Jablonce nad Nisou. Jedná se o poslední volný byt v tomto projektu.
Byt je velmi světlý, jižně orientovaný. K bytu přináleží také prostorná komora (6,5 m2). K bytu je možné dokoupit vlastní kryté parkovací stání nacházející se přímo v objektu.
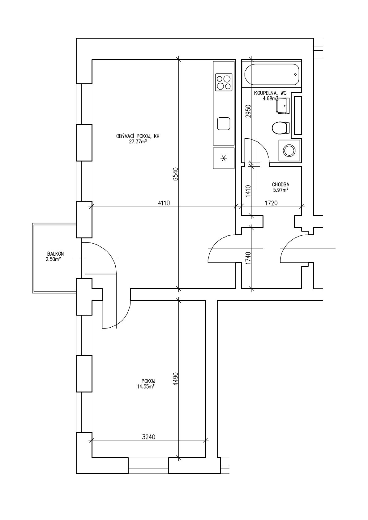
Dispozice bytu se skládá z předsíně (6 m2), v níž je prostor pro vestavěnou skříň, pokoje s kuchyňským koutem a výstupem na balkón (27,4 m2), samostatného neprůchozího pokoje (14,6 m2) a koupelny se sprchovým koutem (4,7 m2). Součástí nemovitosti je také prostorná komora (6,5 m2).
Technické informace a standardy projektu:
- vytápění domu je ústřední a je zajištěno centrálním plynovým kotlem
- celý dům je zateplen dle nejvyšších standardů – energetická třída budovy "D"
- nová dřevěná okna jsou tepelně izolační a jsou opatřena trojsklem
- celý objekt obsluhuje nový moderní výtah s nosností 460 kg
- součástí bytu je rekuperační jednotka, která zajistí vždy čerstvý vzduch bez nutnosti větrat okny a zároveň odvede vydýchaný vzduch mimo byt
- spojení obyvatel domu se světem zajišťuje vysokorychlostní optická datová přípojka
- podlahy – keramická dlažba a PVC Blactex
- povrchy stěn – vnitřní omítky, keramický obklad a bílá výmalba
- vnitřní dveře – dřevěné, obložkové, včetně kování
- vstupní dveře - protipožární plné s kováním s bezpečnostní vložkou
- kuchyně - příprava pro kuchyňskou linku
Bytový projekt Rezidence Podhorská se nachází přímo v sousedství městského parku na historicky významném jabloneckém náměstí Boženy Němcové, jehož součástí je i nejcennější městská památka – secesní kostel Povýšení svatého Kříže. Celé území je součástí městské památkové zóny a společně s řadou okolních hodnotných secesních kulturních památek tvoří cenný architektonický soubor. Přímo u Rezidence Podhorská se nachází zastávka MHD. V docházkové vzdálenosti je pak vlaková stanice i autobusové nádraží. Sportovní vyžití nabízí blízká příroda, jablonecká přehrada, městská sportovní hala, plavecký bazén i Jizerské hory.
Byty jsou vhodné pro vlastní bydlení, rekreaci nebo jako zajímavá investice.
Pro koupi bytu zajistím kompletní realitní a právní servis a také výhodné financování hypotečním úvěrem.
Kontaktujte mě, prosím, pro domluvení prohlídky. Těším se na osobní setkání s Vámi.
Mgr. Radim Brožek
RE/MAX Eso
POLOHA BYTU
Podhorská 960/77, Jablonec nad Nisou




FOTOGALERIE
PŮDORYS
BYT 2+kk s balkónem, 3. NP



